后港漂亮河景公寓,小区提供巴士到地铁服务,2房96.7万起,3房111.5万起
推荐理由:总价低,2房96.7万起,3房111万起,(协助外国人贷款70-80%),项目特点是房子总价低,像度假村似的小区设施

公寓设施介绍:
50米长度的游泳池,健身房,地下停车场,儿童托管中心,店铺,室外健身场地

享受不阻挡河景或者漂亮的游泳池景,可和您的家人或朋友一起水上娱乐项目

小区提供2年免费短程巴士直达后港地铁和后港商场(Hougang Mall),当然也有SMRT的巴士服务,2站地铁即可到达实龙岗的NexMall(东北部最大商场)


超大公寓项目,很齐全的公寓设施,多达接近40项公寓设施,以“水概念”为设计主题,长达200多米游泳池,各类水景,造浪池,小瀑布等,还有小孩托管中心,小卖部,餐饮店铺等,方便小区的居民。


驾车通过KPE高速约15~20分钟即前往中央商业区(CBD),8站地铁到达多美歌地铁站(乌节路)
小区靠近名校,靠近名校,圣母圣诞圣婴女校(CHIJ Our Lady of The Nativity)和圣婴中学,南桥小学也只需数分钟车程即可
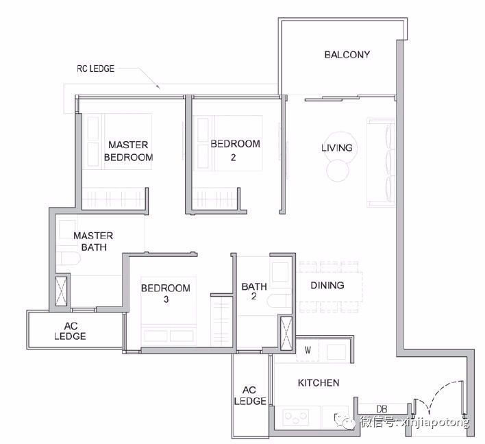
项目户型介绍:主要以2房,3房为主
2房户型图 (样本)64平方米,价格96.7万起

3房户型 79平方米 带封闭式厨房,价格111.5万起

3房户型 82平方米 带封闭式厨房 设计简约 价格118万起

3房户型 89平方米 带封闭式厨房 设计简约 价格125万起

样板房照片
2房客厅和房间照片


若您对新加坡任何房产感兴趣,请免费咨询我们的特约房产经纪人张琼/Linda,开发商直接代理销售团队,买公寓无任何中介费用,协助客户办理买房银行贷款,买房产业托管一条龙服务。
如果您喜欢这边文章,请分享在你的朋友圈或转发您需要的朋友,谢谢!
微信号:zhangqiong046456 电话:93397258
作者介绍 张琼(Linda),新加坡最大房产经纪公司Huttons市场部高级董事,公司代理全岛各地项目,拥有丰富的房产行业经验,已经加入热爱的房地产行业6年多.全心全意为客户考虑,以客户利益为出发点,诚信待人,服务过包括新移民,企业家,商人等,广泛获得客户好评。不跟买家收取中介费,专车接送看房,公司代理全岛各地项目。一个电话过来就了解全岛各地段的项目,总有一款适合您!
协助您办理银行贷款(外国人可贷款),房屋推荐,律师咨询等,值得客户信赖的房屋经纪人。
总以专业的眼光推荐适合客户需求的房屋项目,始终客户优先.
欢迎需要买房或者卖房的朋友添加我的微信号(扫描以下二维码)
请扫描下面二维码

评论