新加坡最能赚钱的「房子户型」,都在这!


博纳产业
有温度的一站式服务
新加坡
高效率户型
中央区 – 潜力股
李嘉诚曾说:“决定房地产价值的因素,第一是地段,第二是地段,第三还是地段。”
新加坡是全球最适合工作,居住和娱乐的城市之一。人口增长是刚需,法律严格,房价走势稳定上扬,贷款利率低,众多的有利因素,使得新加坡房地产多年来深得本地和海外高资产人士的青睐。 投资房产时,大家总希望既物美价廉,又能得到高回报率;但在这之前,我们必须了解,什么是「潜力股房产」?
潜力股房产 · 三大成因 1 房产地段 地段是房产价值的重要考虑因素,因为房产地段会影响你的生活品质,周边设施和未来规划也会拉动房产升值空间。 交通便利、生活便利,靠近中央区、周边设施,性价比… 这些都是我们买房看地段的考量的因素之一。2 房型设计 房子设计格局,是否舒适,达到高效率的善用呢?方正的房子整体利用率比较高。各种凹凸位、转角位会占用你的实际居住面积,同时不好摆放家具。这些,不仅是屋主本身的居住体验,对于未来想要“出租“、“转售“来说,也将会是买家的重要考虑因素。所以选择房产时,格局设计是否符合“高效率“,非常重要!3 周边规划 对于投资房产来说,大家都希望投资的房产未来能有升值空间,那么什么样的房子升值的潜力最大呢?
我们必需了解房产未来的周边规划,将来会有什么发展或新的基础设施吗?例如地铁,著名学府,医院,商场,写字楼等等。在宣布建设之后,通常房价就上涨,在宣布完成之后,周边的房价就会上涨的更快。
“潜力股房产”除了好地段,高效率户型,加上房产周边未来规划前景好,就不会随着时间推移而贬值,只会更加历久弥新,中长期回报率也将因此得以保障。潜力股房产 · 实例分析 案例一:RV Altitude
高效率户型,第9区进场价最低

RV Altitude 位于第9区里峇峇利路(River Valley), 3分钟车程可到达乌节路购物街,临近繁华商业区,交通十分便利。项目预计能在2022年7月取得临时入伙准证。RVAltitude 距离即将在2021年竣工的大世界地铁站仅约4分钟,相信地铁建成后房价会有上涨潜能。
RV Altitude地段之前是片空地,由新加坡开发商乐斯太平洋控股(Roxy-PacificHoldings) 成功收购。RV Altitude共有140个私宅单位,21层高,户型总类有两房和两房双钥匙,单位面积41至59平米,五脏俱全的精致户型。RVAltitude土地面积约2675平方米,是属于永久地契,值得投资家收藏。
RV Altitude项目亮点
RV Altitude坐拥在第9区,是属于新加坡的核心中央区,即靠近乌节路也临近中央商业区,一直都受私宅买家的青睐。住户只需步行约10分钟就可以到达6层楼的世界城大商场,商场里有许多零售商店,国际餐馆,电影院,超市,健身房等,应有尽有,十分方便。公寓附近也有许多国际学校。 公寓设施简约且完善,屋顶露台设有不同休闲主题设计,能舒适地享用美食与美酒,并设有温水泳池、瑜伽冥想区、健身房等,设施齐全。 RV Altitude 还配备了智能家居系统,提供住户高科技生活体验!温馨的家除了便利舒适,也要住的安心,而智能家居安全系统,能让住户生活便利,还能更加安心。


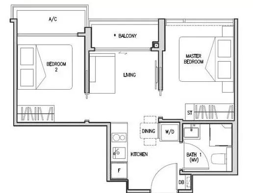
RV Altitude户型2房


2房双钥匙

尹藯潣(Jasmine)房产专家点评
RV Altitude属于极简精品,房型效率超高,出租高收益的房产。进场价是第9区永久地契中最低。两房单位从新币136万起,相当于第9区其他公寓一房的价格;双钥匙单位从新币182万起,相当于拥有了两套均价才新币90万的Studio一房套间!
案例二:SkyEverton (欧南园)
绝版地段,升值空间大

Sky Everton在6月22号开盘,第一天已成功售出40%的单位,到7月底为止SkyEverton已售出74%的单位,成绩非常亮眼!其实Sky Everton会卖得这么好一点也不感到意外。Sky Everton地段坐拥在新加坡的中央区,靠近未来新地铁站,是个永久地契项目,性价比又高,相信不用多久时间就会卖完了。
Sky Everton位于新加坡第2区,和戴森创办James Dyson在新加坡买下的价值新币7380万的超级顶层豪宅是属于同一个区域!Sky Everton的1房和2房目前已完全售出。3房从新币233万起,价格可同一些99年地契新盘相比,Sky Everton可说性价比非常高。
Sky Everton 项目亮点
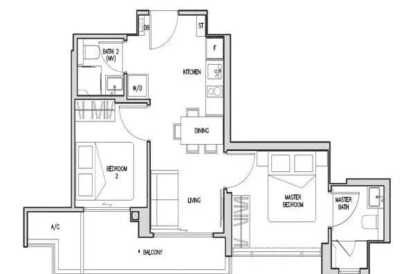
Sky Everton属于新加坡中央区项目,位置十分受欢迎。公寓临近繁华的商业区,目前最靠近的地铁站是欧南园(550米)。项目预计能在2023年9月取得临时入伙准证。距离Sky Everton仅有280米的广东民(Cantonment)地铁站预计两年后在2025年完工,到时候相信能再次带动项目的价位。Sky Everton将会是个靠近两个地铁站的永久地契项目,交通非常便利。 SkyEverton的位置十分优越,靠近新加坡Greater Southern Waterfront。Greater Southern Waterfront是一个很大的项目,从巴西班让延伸到滨海东,面积约滨海南的6倍。这里将建设新住宅,娱乐休闲设施和商业区域,可以增强房子未来10年的价值。 Sky Everton共有262个单位,36层高。一和两房在开盘的第一个月已完全售出,还有三房四房和顶层豪宅供选择。特别推荐3加书房“高效率户型”,面积89平米包括私人电梯,封闭式厨房,储藏室,两个卫生间都设有通风窗户,值得考虑!Sky Everton 户型3房+书房



尹藯潣(Jasmine)房产专家点评
Sky Everton坐拥于新加坡中央区,生活便利,靠近两个地铁站,永久产权的Sky Everton非常受买家的欢迎。同时Greater Southern Waterfront也可以增强Sky Everton未来10年的价值。这个永久地契项目性价比很高,很适合投资和居住!
案例三:玛庭豪苑(MartinModern)
奢华优品户型,格局大方高效率

玛庭豪苑坐拥在第9区,是新加坡最具盛名的顶级豪宅区,可谓寸土寸金。项目同时也靠近乌节路顶级购物圈,和里峇峇利、罗拔申码头时尚生活区,几分钟车程即是中央商业区、牛车水和滨海湾地带。在不久的将来,即将建成的大世界(Great World)和福康宁(Fort Canning)地铁站,将进一步提升项目的连通性,四通八达的交通网络形成在即,项目的区位价值也将显著提升。
玛庭豪苑99年产权,属于新加坡繁华都市中的花园豪宅。玛庭豪苑小区的面积很大,约480,000平方英尺,仅有450个单位,是个底密度的项目,很适合居住。目前已售出70%的单位,玛庭豪苑可说是第9区域的地标性项目!
MartinModern 项目亮点
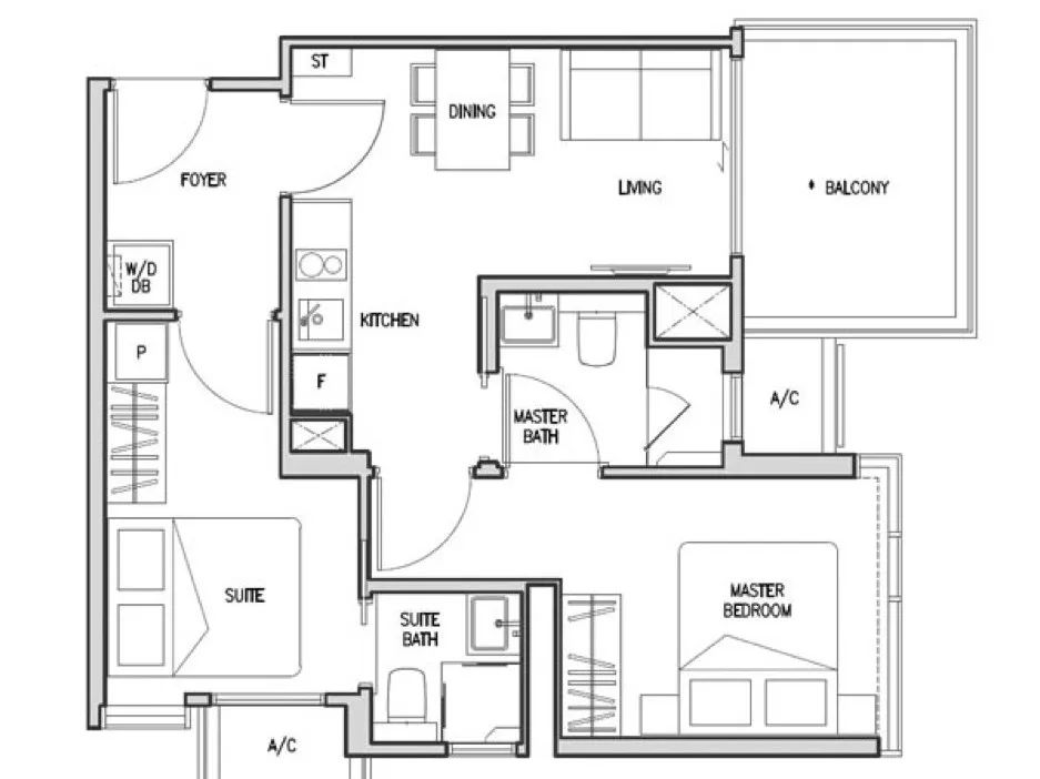
15个匠心独具的主题花园,宽敞舒适且兼具实用功能的户型设计,每一个单位都享有一览无遗的迷人景致,这就是玛庭豪苑在新加坡最为人梦寐以求的黄金地段,玛庭豪苑为住户带来了非同凡响的极致人居体验。 玛庭豪苑的园林设计理念来源于新加坡植物园,项目将有超过80%的面积保留给园林景观,超过200种植物和50余个不同品种的树木分布于15个特色主题花园,如迎宾阁、派对草坪、雨林花园和水阁庭院等。 “以人为本”一直是国浩房地产的核心理念,秉持这一理念,玛庭豪苑在设计时采用由内而外的法则,设计师专注于点滴细节之间,确保每一个单位都拥有舒适且实用的空间,并配以最顶级的材料和设施。 在玛庭豪苑,每一寸的空间都经过精心设计,每一分的体验都被周到考量。从大理石铺设的厕所、智能家居系统、尊贵的礼宾服务、到国际一线品牌的厨卫设施,如美诺(Miele)、斯麦格(SMEG)、劳芬(Laufen)和雅生(AXOR)。这些品牌,秉持着顶级的工艺和设计,以现代化的美学理念和品味,将玛庭豪苑的人居体验推向极致。Martin Modern 户型2房+书房
可当3房户型使用

3房

4房



尹藯潣(Jasmine)房产专家点评
玛庭豪苑是一款超级奢华,大型全套设施社区的顶级豪宅,提供超奢享从容生活。因为占地很大,所以小区在配套设施,休闲体验感上,超越上面的两个楼盘。户型比RV Altitude以及Sky Everton更显宽敞,户型大方,非常适住。两房,71平米, 新币190万起; 四房,161平米,新币440万起。
我是 尹藯潣/ Jasmine2013年我成为了新加坡房地产经纪人委员会认证的持牌房地产经纪人。我热爱新楼盘,因为新楼盘有潜在的资本增值空间。我注重的不是客户的数量,而是希望能与每位客户建立长期的关系。如果您想、一位真诚,诚实且专业的房地产经纪人,请您联络我。真诚的期待,我能为您找到您理想的家园。
新加坡最大地产上市公司
博纳集团

有温度的一站式服务
尹藯潣 Jasmine
主营业务:中国客户房产销售
HP:+65 90255978
微信号:jasmineyeeweimin
公众号:Jasmine_Property
我们的团队博纳产业中文精英队,秉承诚 实待人,信为本,专立业 的价值观,提供行业最高水准的房地产一站式服务,业务包括新盘代理,豪宅买卖,投资顾问和财务分析等。
(图文由博纳产业中文精英队提供)
评论