新加坡凤毛麟角的有地住宅,SeaHill项目为何如此受欢迎
新加坡,一个生机勃勃的繁华岛国,这里有着东方的传统与西方的视角完美的融合在一起并且创造了现代多元化的国际社会。
新加坡的稳定政治环境,繁荣的经济景象还有名列前茅的教育系统吸引了不胜枚举的房产投资者。这导致新加坡一直接纳著庞大的外来资金并且注入了房楼市场,使房产需求量往往胜过于供应。房产价格因此变得昂贵。

尽管如此,90%以上的新加坡人都拥有属于自己的房产,而拥有私人土地的房产更是很多人梦寐以求的理想。有地产业给人带来了一种彰显尊贵身份的象征还有一种别致的独特性。因此,很多国民不惜钱财,一掷千金购买有地住宅(有地住宅也就是我们中国人所说的别墅)。
根据“商业时报”的ValueChampion研究报告称,只有新加坡最高5%的收入者,这些每月6位数的收入者如财务总监,专科医生,律师和财务长等专业人士才能有实力购买的有地住宅。

此外,新加坡的土地有限所以有地住宅物业被新加坡政府归类为“限制”物业。非公民不得在新加坡拥有土地,但位于圣淘沙的有地房产以及极少数的联排别墅除外。绿卡持有者可以向SLA下的土地交易审批单位LDAU提出申请,以获得在新加坡拥有土地的许可。
政策虽严,限制虽多,在寸土寸金的岛国依然可以追求“有天有地、宽敞通透”的高品质生活。联排别墅,让具有一定实力且追求舒适空间享受的外国人,既可避开政策限制,又能享受“有天有地、宽敞舒适”的别墅生活。

项目信息
Sea'hill
项目地址:119 w Coast Cres, Singapore 126777
区域:新加坡第五邮区
地契:99年(从2011年9月26日起)
占地面积:12,662平方米
容积率:约2.8
总栋数:3栋塔楼+18间排屋
住宅总户数:676户
排屋车位数 每户2个私人车位(小区总车位320个)
TOP交房年份:2016年6月
开发商:远东机构
建筑设计:RDC Architects

有地住宅
城市重建局(URA)报告显示;新加坡总共有73,105座私人有地住宅,297,839套私人无地住宅(公寓)和约130万套公共住房(组屋)。新加坡的土地有限所以有地住宅物业被新加坡政府归类为“限制”物业,有地住宅仅占新加坡现有住房总数的5%,成为稀缺且有价值的房产.

有地住宅主要分为三大类,联排别墅(Terrace house),半独立别墅(Semi-detach House),独栋洋房/别墅(Detached-house)。联排别墅让具有一定实力且追求舒适空间享受的外国人,避开政策限制,在寸土寸金的岛国依然可以追求“有天有地、宽敞通透”的高品质生活。
联排别墅在新加坡是一种“分层地契有地住宅”,并不拥有房子的地契,而是与整个项目的其他业主共同分享一张地契,即分层地契。新加坡的联排别墅地契年限为99年或永久地契,而中国的别墅地契只有70年。
SeaHill 联排别墅优势
1、不限制外国人士购买
2、新加坡绝无仅有的滨海联排别墅,2 分钟步行即达西海岸公园
3、新加坡唯一可享受酒店式公寓专业礼宾服务的联排别墅
4、宽绰 4 房式,单位面积 3000 平方英尺以上
5、2 层楼生活空间+专属屋顶天台+配有两个私人车位的地下室
6、家门前即是泳池,后院是绿意盎然的花园
7、有地住宅的生活享受,配以齐全完善的公寓设施
8、挑高层高。

地理位置
位于宁静的西海岸住宅地产, Seahill 坐落在西海岸公园(West Coast Park)风景秀丽的海岸线和 Clementi Woods 公园郁郁葱葱的绿树之间。靠近自然,享有海滨生活和宁静的环境。这一无与伦比的滨海项目拥有 SOHO 家居、高档公寓与联排别墅供您选择,绝大多数单位均可欣赏到海景全貌或迷人山色。

8 分钟左右步行即达西海岸广场和西海岸集市,短途车程即达大型商场——怡丰城、港湾中心和圣淘沙名胜世界,2分钟步行到西海岸公园,靠近西海岸广场。
西海岸公园

本地新鲜超市

进口超市

配套设施
与家人一起享受公寓的设施,如天空泳池,水疗岛和按摩亭,以及西海岸公园附近的休闲活动。怡丰城、圣淘沙名胜世界和环球影城也只有几分钟的车程。短途车程到丰树商业城,滨海金融区,博纳 Vista 商务区和裕廊中心。附近还拥有众多教育与科研机构,在著名的南华高中和新加坡国立大学附近。
按摩亭

户外网球场

天空泳池及健身房


尽享SeaHill联排别墅的尊崇体验,SeaHill 精品联排别墅系列不仅带给您有地住宅般的尊贵与安逸,更配有齐全完善的休闲娱乐设施。业主可以享受酒店式公寓提供的专业礼宾及家政服务。联排别墅供应受限,此乃绝佳投资良机。最重要的是,您的房产将得到专业、可靠的管理,让您安枕无忧,从容享受豪华写意的优质生活。

每套联排别墅都拥有多层生活空间,4房式户型,直通泳池与花园。超宽敞的空间,可让多代同堂家庭享有更多私密性(夫妻)、便利性(照顾老人)和全天候的安全性(小孩上学)等优势。买联排不买公寓也可为将来全家移民做好准备。
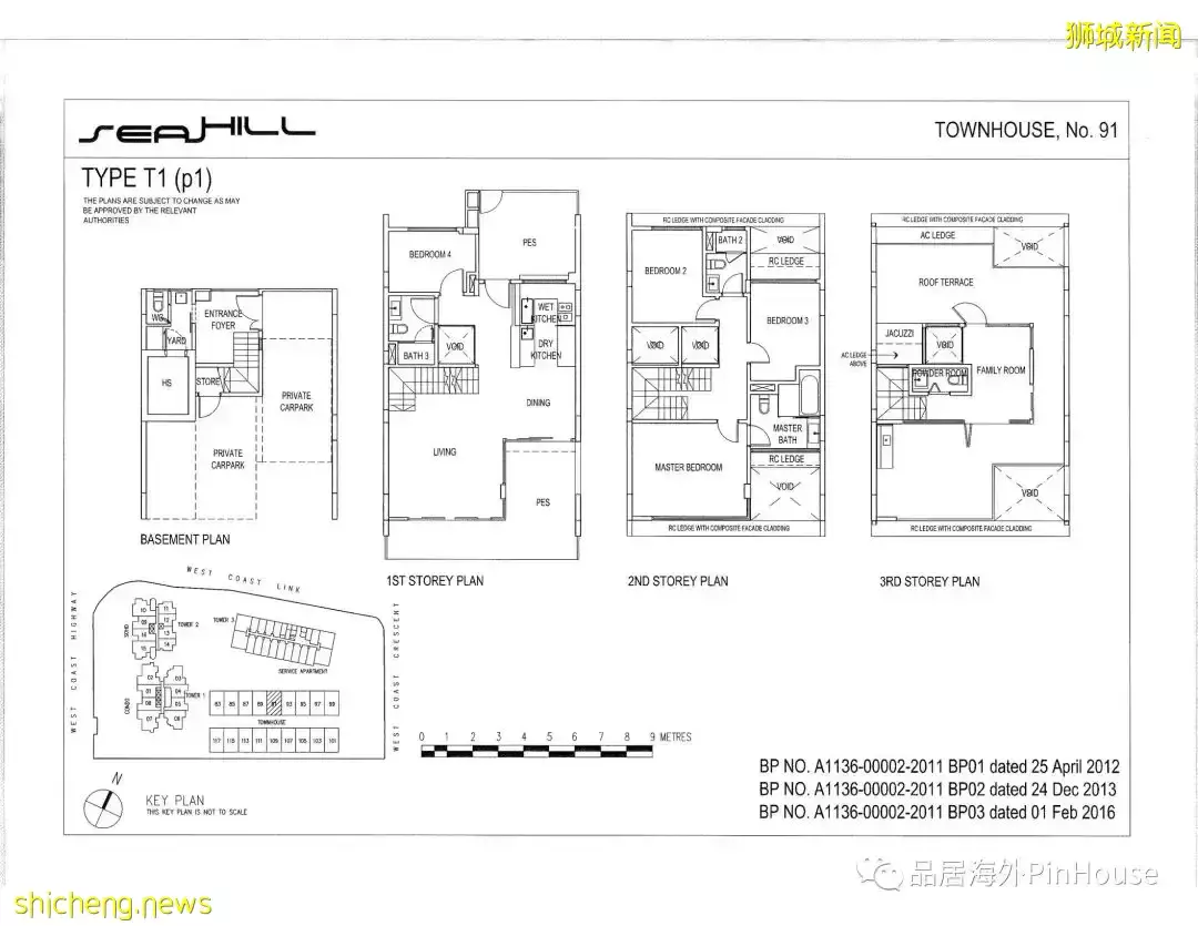
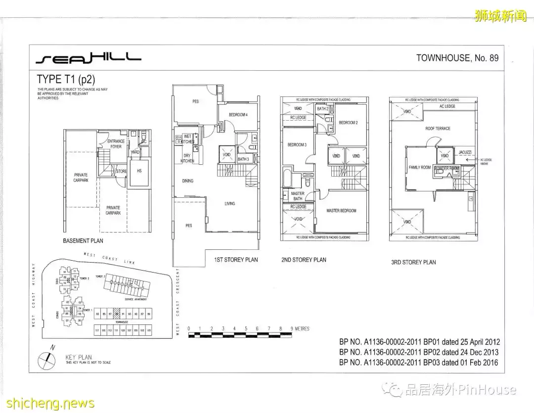
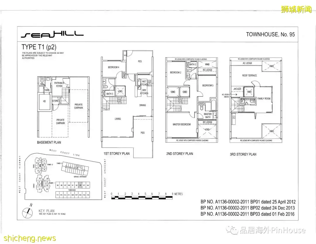
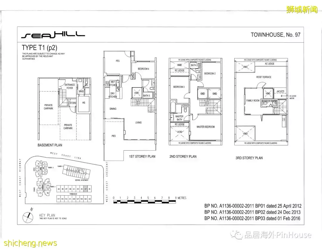
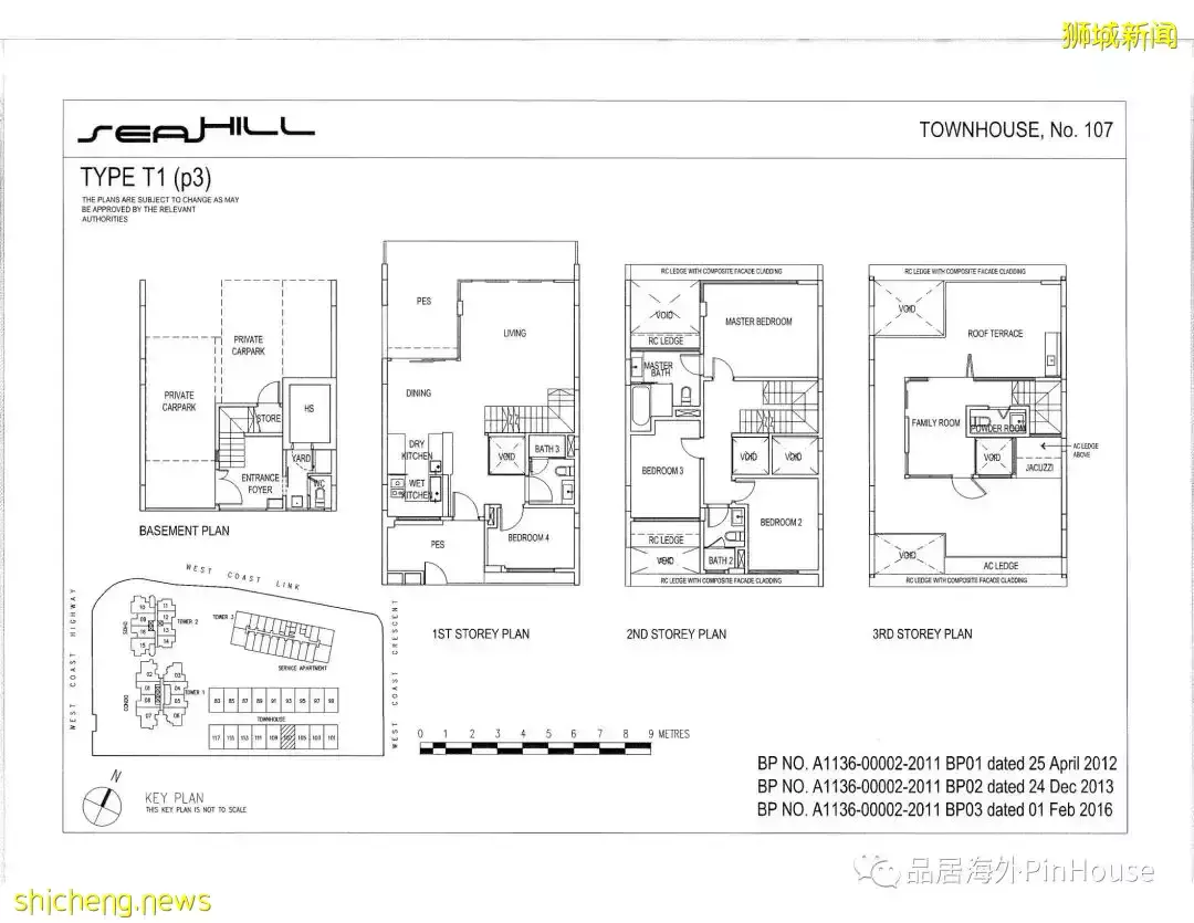
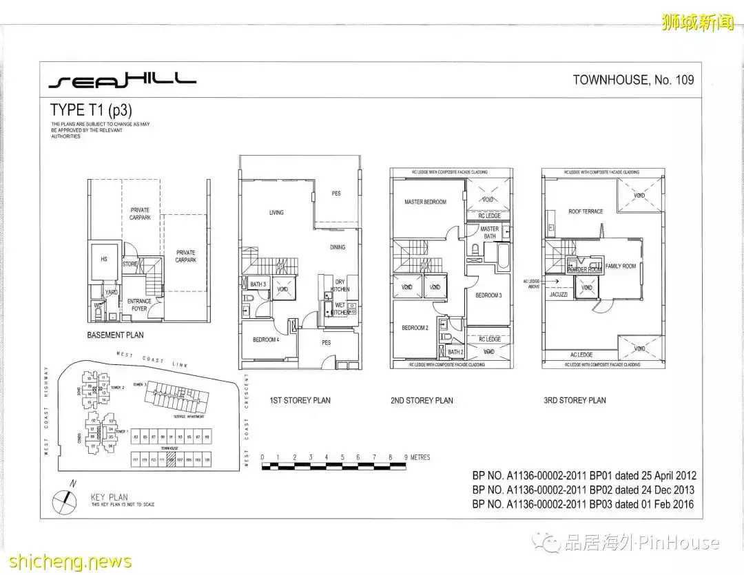
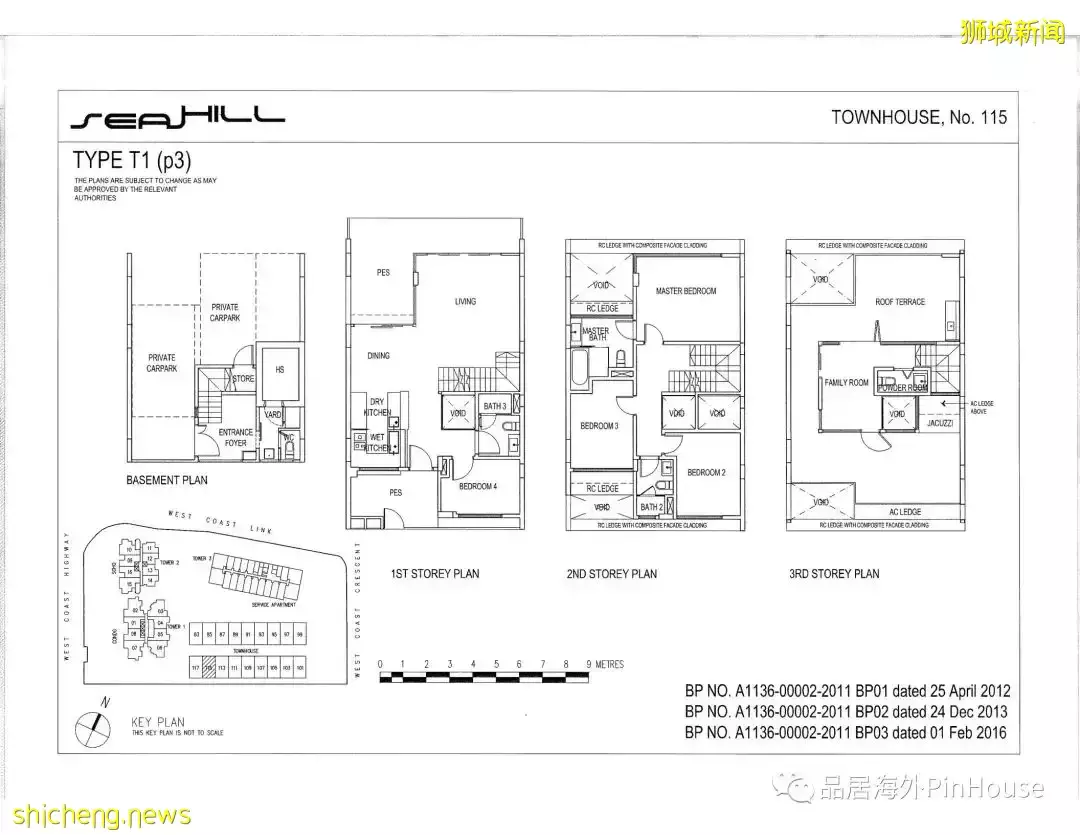
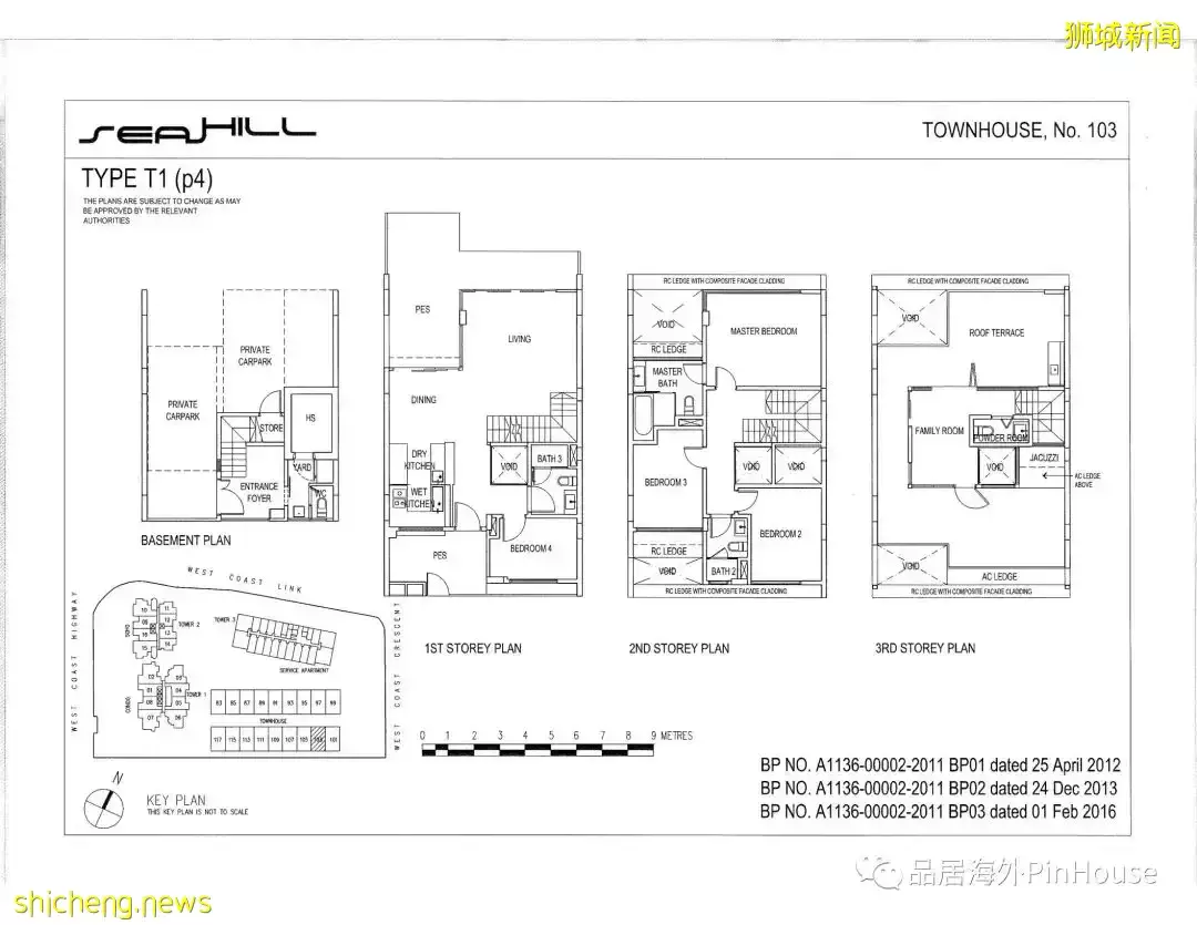
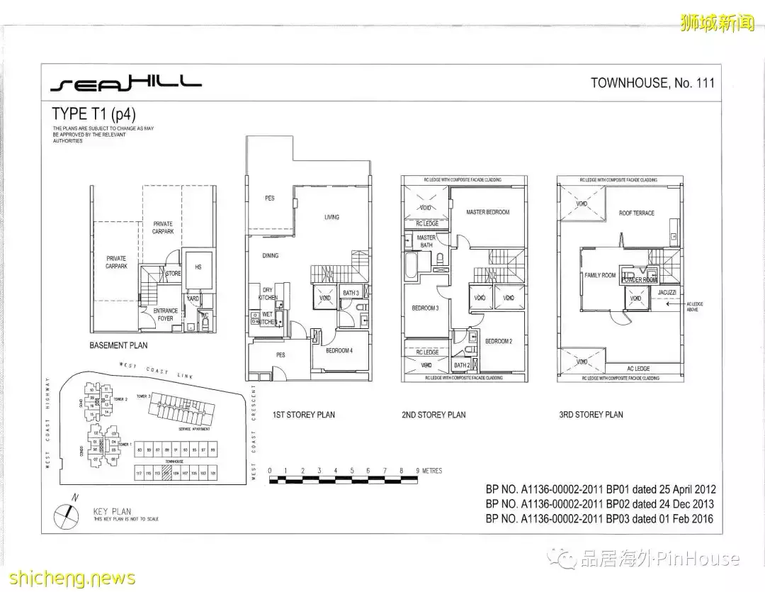
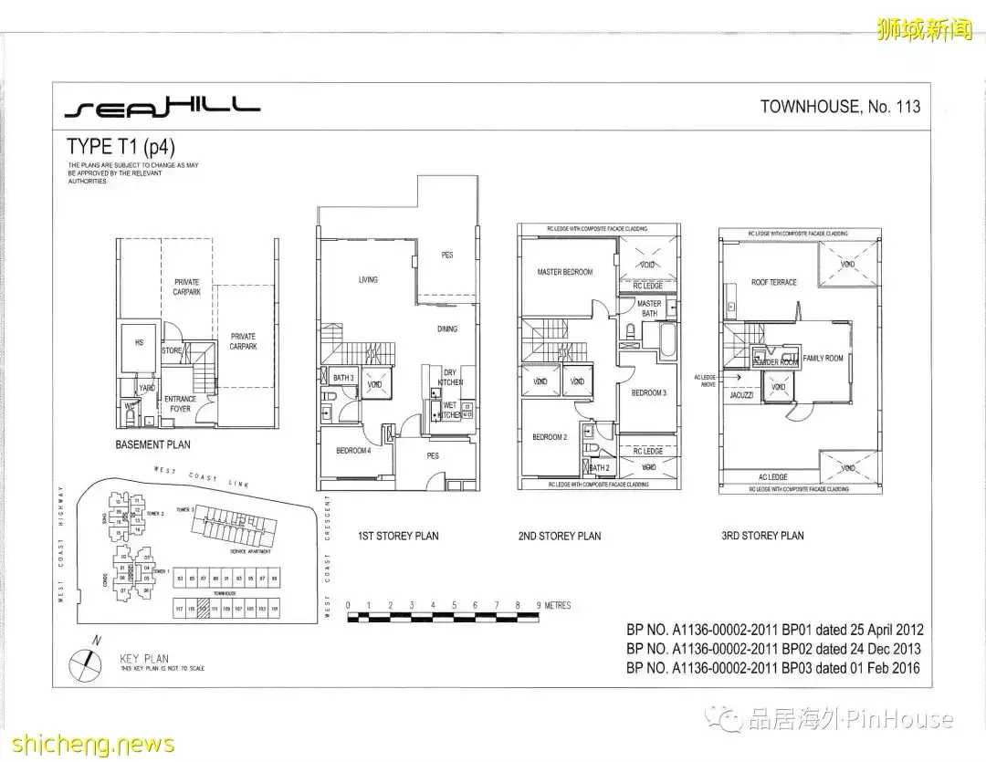
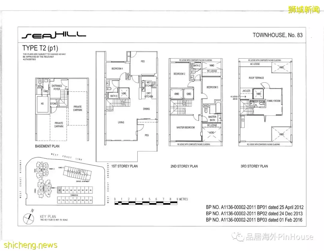
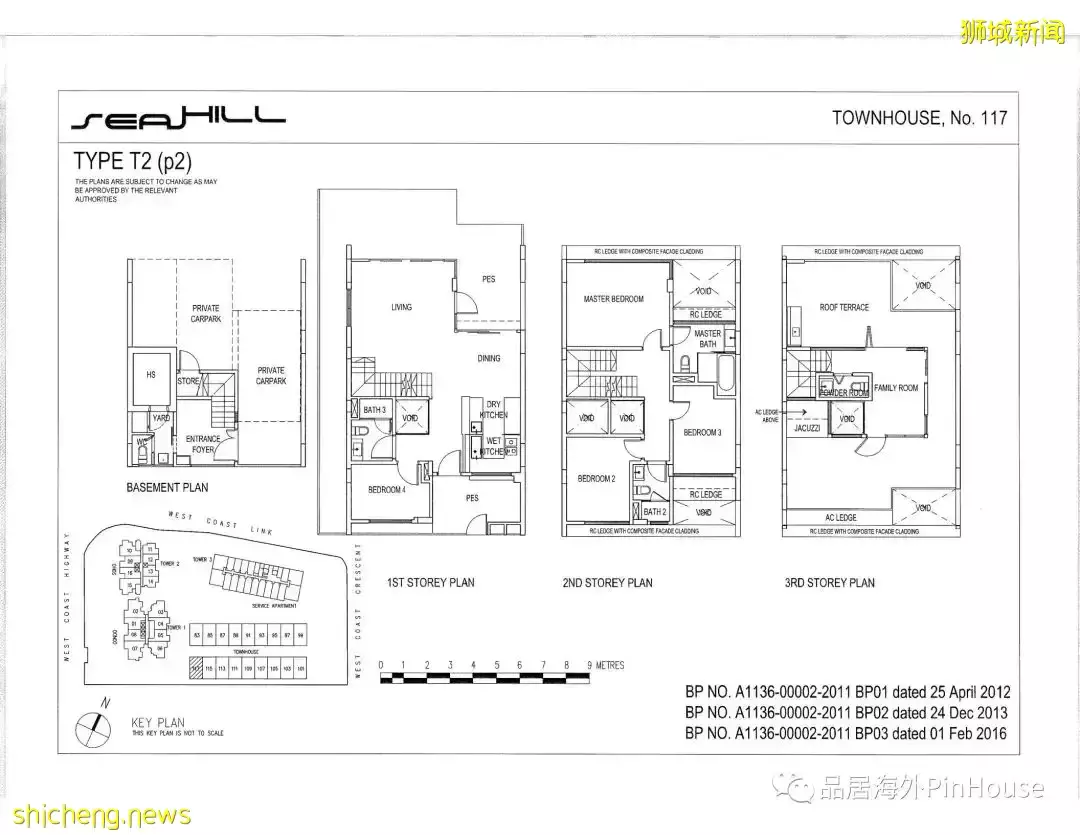
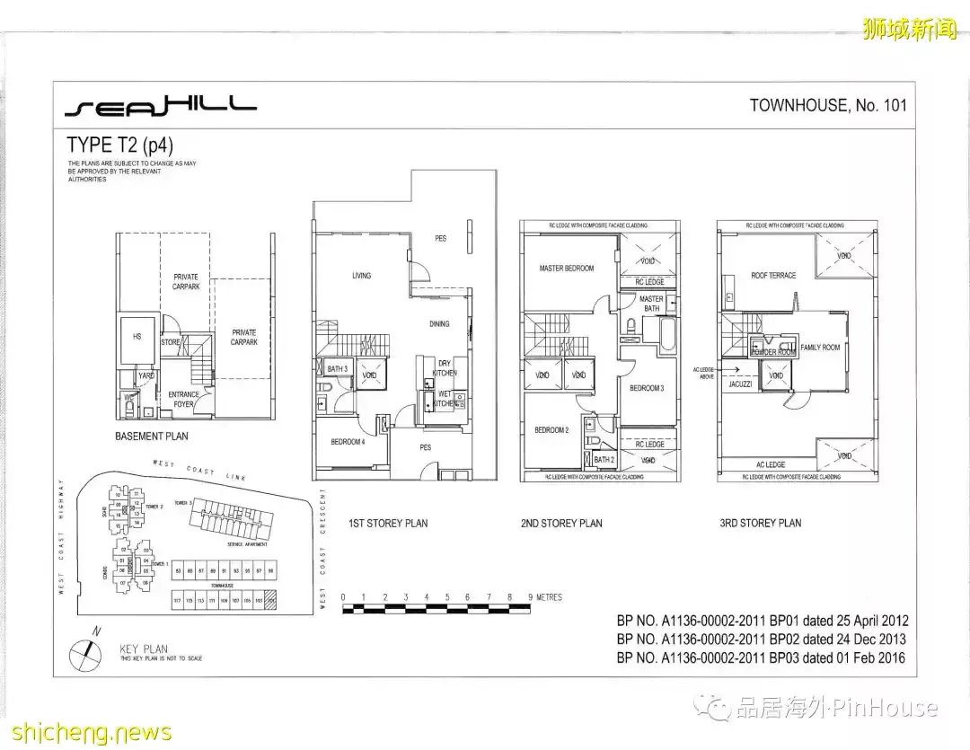
户型展示














左右滑动查看更多户型图




评论