东部淡滨尼的聚宝园 四房和五房高达8万促销活动中,最便宜新楼盘,接近EC价格,每英尺只需1322起
项目简介:
聚宝园是一个99年产权公寓,占地面积60283平方米,约8分钟步行到四美地铁站Simei MRT,由29栋12层建筑组成,新加坡知名发展商森联集团Sim Lian Group,总共有2203个住宅单位,在新加坡属于超大型私人公寓,户型有1房、1+书房、2房、2+书房、3房、4房和豪华5房,预计2023年第2季度交房

最新更新:
2020年阻挡期后6月卖出104套,7月卖出110套,8套卖出109套,开盘2年多就已卖出2090套,销量接近95%(发展商有5年半销售时间),新加坡市场连续好几个月销量冠军楼盘,销量好证明亲民价格和产品给力,群众的眼睛是雪亮的。卖得好的原因简单粗暴,聚宝园是市场上价格最便宜的新公寓,价格只需$1409/平方英尺起,有兴趣朋友尽快扫描文章尾端微信二维码预约看房
促销活动高达8万新币:
3房优质型享受高达5万优惠(最后3套)
4房豪华型享受高达6万新币(最后7套)
5房豪华型享受高达8万新币 (#02-77)
项目视频介绍:
项目要点:
· 市场上新楼盘价格最便宜项目,接近执行共管公寓EC的价格,价格只需1181/平方英尺起,特别适合预算相对有限的朋友们,低入场价
· 位于新加坡配套成熟住宅社区-东部CBD,4个大型商场
· 淡滨尼生活极为便利,靠近3个地铁站,淡滨尼购物中心,菜市场等,
· 适合买来自住,作为新加坡东部淡滨尼区域中心,周围商场林立
· 适合投资,靠近扩建中的樟宜机场,樟宜商业区,淡马锡理工学院,UWC国际学校,新加坡科学设计大学等,稳定的租客来源
· 多达128个公寓配套设施和9个会所供您使用
· 大部分单位为南北朝向,户型设计方正实用为主、采光极佳
· 免费巴士去淡滨尼地铁站和樟宜机场Changi airport
· 采用现代化的智能家居系统
· 物业费便宜,一年免费小区巴士接送淡滨尼地铁站
生活便利,购物选择丰富
淡滨尼作为东部的商业中心,作为东部成熟的住宅区,大型购物商场林立,包括淡滨尼商场Tampines Mall、世纪广场Century Square、淡滨尼1号商场Tampines 1、Our Tampines Hub,步行三分钟可以到著名的圆形巴刹熟食中心淡滨尼大牌137,享受地道的新加坡当地美食,可以去菜市场买菜,解决您生活这块需求。
如果需要买家具或者生活类产品,可以去宜家在新加坡的最大旗舰店,需买电器或者电子产品时,可以选择去大型电器超市Courts,还有一个大型超市Giants,里面的东西品种齐全,吃喝玩乐选择丰富,以上说的宜家Ikea、Courts、Giant超市都集体在一块。

丰富的教育资源供您选择
作为一个拥有2200多套的超大型公寓,教育资源是首要的考量因素之一。聚宝园位于一个相当成熟的市镇,教育资源非常丰富。年轻夫妇关心幼儿园教育。聚宝园附近1公里范围的幼儿园就有8家,其中的6家在500米范围内。孩子上小学的父母也有很多选择。聚宝园附近的公立学校非常多。
一公里范围内的小学就有7所:
· 包括树仁小学(Angsana Primary School)
· 尚育小学(Changkat Primary School)
· 崇正学校(Chongzheng Primary School)
· 淡滨尼小学(Tampines Primary School)
· 育民小学(Yumin Primary School)
· 东景小学(East View Primary School)
· 俊源小学(Junyuan Primary School)等
两公里范围内的中学有12所:
· 包括名校德明中学 (Dunman Secondary School)
· 以及淡滨尼中学(Tampines Secondary School)
· 尚育中学(Changkat Changi Secondary School)
初级学院和大学:
· 淡滨尼初级学院(Tampines Junior College)
· 淡马锡理工学院(Temasek Polytechnic)
· 新加坡的第四所公立大学,新加坡科技设计大学(Singapore University of Technology and Design)等,满足不同年龄层居民的需求。
智能家居系统,享受数码科技生活
聚宝园公寓采用现代化的智能家居系统,让您的生活智能化、数码化,轻松安全、感受生活。这个系统包括采用数码锁,让居家生活更安全更便利。智能家居系统也可以遥控居家空调开关和温度,让您回到清凉又舒适的家。居家智能系统还包括通过手机来遥控贵客的来访以及居家服务,更加方便快捷聚宝园公寓的智能家居系统
公寓还配备智能社区系统,每位居民均可安装社区智能手机应用程序。通过这个程序,您可以预定便利设施和场所。您可以通过这个系统通知您的朋友或访客从侧门或正门进入公寓或您家。您也可以使用社区的WiFi网络服务,进入24小时无间断的健身房和洗车位预定。您也可以利用这个程序查看附近的巴士到达时间。公寓还设有包裹收集站,居民也可利用这个应用程序在方便的时间段收取包裹。此外,公寓还配备来往淡滨尼地铁站和樟宜机场的免费穿梭巴士,居民可以利用该应用程序查看穿梭巴士的时间表。

漂亮小区图片大放送:



线上视频看房:
2+书房,63平方米
3房优质型,96平方米,适合家庭
4房豪华型,124平方米,适合大型家庭
户型和参考价格介绍:
(附注:以看房选择单位价格为准)
三室两厅优质型,样板房户型,面积为96平方米,带保姆房,大主卧和阳台,原价157.1万起

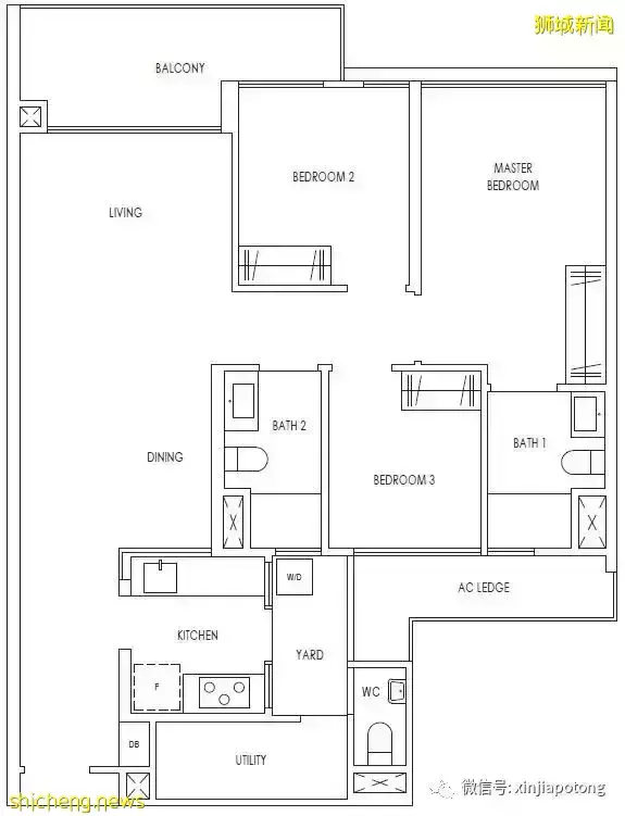
四室两厅,面积为115平方米,大客厅配大阳台,超大主卧面积,原价191万,优惠价186万新币起

四室两厅优质型,面积为124平方米,大客厅和次卧配大阳台,大主卧,适合想住大户型的家庭,原价195.7万起,优惠价189.7万新币起,单价只需1421/平方英尺

五室两厅豪华型,市场上稀缺,双阳台,面积160平方米,原价246万起,优惠价238万新币起,单价居然只需每尺1391元起,这样好价钱哪里找

漂亮四卧室样板房图片,房间超大:




评论