新加坡盛港中心最新综合项目——盛港嘉园
由两大房地产开发商巨头凯德集团(CapitaLand)和城市发展集团(CDL)携手合作的项目盛港嘉园(Sengkang Grand Residences)在本月25日举行了盛大了预览活动,开放了样板间给广大购房者参观。



盛港嘉园(Sengkang Grand Residences)位于新加坡19区盛港区(Sengkang),这里是新加坡一个最受欢迎的居民区。两大发展商将这个项目发展成为多用途的综合项目,包括住宅与零售。这也是继水之都(Watertown)和勘宝坊(Compass One)后这一地段的又一受瞩目的综合项目之一。

盛港嘉园(Sengkang Grand Residences)位于康埔桦弓形路(Compassvale Bow)是2017年下半年的政府售地计划,整个项目的占地面积37,284平方米,容积率2.1,属于99年地契项目,预计2022年可以得到临时入伙证(TOP)。
项目简介
盛港嘉园(Sengkang Grand Residences)项目包括9栋建筑,共拥有680个住宅单位,包括一处三层的零售空间(面积超过16万平方英尺)和民众俱乐部设施。其中131个一卧房加书房单位,95个两卧房单位,10个两卧房加书房单位,136个高级两卧房加书单位,148个三卧房单位,56个高级三卧房单位,55个三卧加通用房单位,49个四卧房加通用房单位,面积介于44平方米到123平米之间。

地理位置
盛港嘉园(Sengkang Grand Residences)位于万国地铁站(Buangkok MRT)附近,乘达地铁可以知道多美歌转换站(Dhoby Ghaut MRT Interchange)前往市区。这里的住户也可以搭乘这条地铁前往实龙岗转换站(Serangoon MRT Interchange)轻松换成环线(Circle Line)。驾车人士可以轻松连接到淡滨尼快速公路(TPE)和加冷巴耶利巴快速公路(KPE)通往其他主干道。

生活娱乐设施
盛港嘉园(Sengkang Grand Residences)的居民足不出户就可以在小区内进行日常购物、餐饮等,这里设有很多零售店以及餐饮店非常方便。
除了社区内的设施,这里居民也可以去附近盛港地铁站的勘宝坊(Compass One),那里是一个综合购物中心,它附近还有一个熟食中心,里面有很多摊位供应新鲜的水果蔬菜和鱼肉海鲜的食材,也有很多新加坡当地的小吃美食等。

教育机构
盛港嘉园(Sengkang Grand Residences)周围很多公立小学包括:
如康伟小学(Palm View Primary School)
远景小学(North Vista Primary School)
榜鹅小学(Punggol Primary School)
杨厝港小学(Yio Chu Kang Primary School)
安泰小学(Anchor Green Primary School)
南侨小学(Nan Chiau Primary School)
成康小学(Seng Kang Primary School)
蒙福小学(Montfort Junior School)
康德小学(Springdale Primary School)
北源小学(North Spring Primary School)
中学包括:
南侨中学(Nan Chiau High School)
德新中学(North Vista Secondary School)
成康中学(Seng Kang Secondary School)
蒙福中学(Montfort Secondary School)
后港中学(Hougang Secondary School)
圣婴中学(Holy Innocents’ High School)
实龙岗中学(Serangoon Secondary School)
圣婴女校(CHIJ St. Joseph’s Convent)
新民中学(Xinmin Secondary School)

公寓设施
盛港嘉园(Sengkang Grand Residences)的公寓设施可以满足不同年龄段的需要,值得一提的是项目为了有孩子的家庭建设了儿童活动区域,和儿童戏水池等。还为了养宠物的家庭设立宠物活动区域,足不出户就可以遛娃遛狗。

烧烤台

公寓景观

儿童游乐区

泳池
雅居欣赏
盛港嘉园(Sengkang Grand Residences)在室内装修和家用电器的选用上十分讲究和用心,都选择了知名品牌的家电、智能门锁和环保设备等。


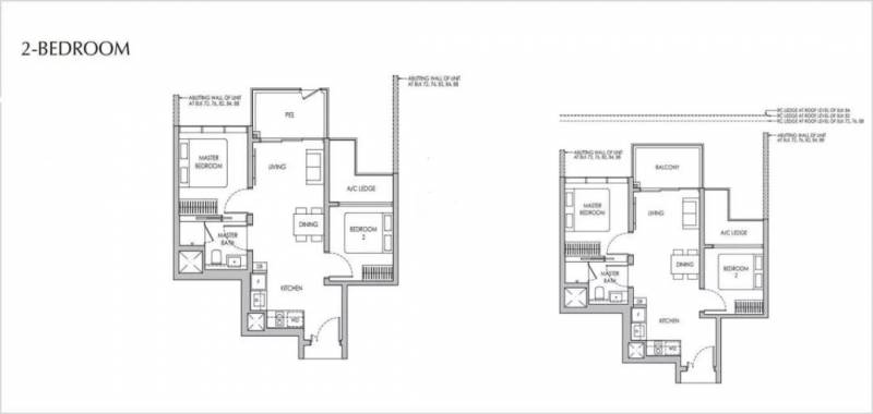
户型图
一卧房 (从474平方英尺起)

二卧房(从624平方英尺起)

三卧房(从936平方英尺起)

四卧室(从1012平方英尺起)
评论