60万在新加坡市中区边买个新房子,Sims亮相

2014-2015这两年,房价稳,汇率低,按理说是买房投资的大好时机;但最近却有很多适龄男女青年都在发愁买不到合适的房子,因为新开盘的房子太少了,而之前开盘的房子,小户型基本都是一开盘就抢空了。于是,直到2月有这样一个综合型大型公寓项目终于开盘,不禁欢唱“终于等到你”——小户型,总价低,位置好,近市区,空间大的Sims,盛世名园。

先来张效果图看看美楼,高大上的感觉是不是来了
Sims小户型之秀外慧中
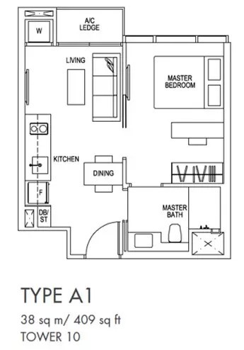
先来讲讲这小户型有多慧中。Sims现推出的1房式单位面积为38平方米起,由于新加坡并无公摊面积,加上Sims这一小户型的高效内部空间规划,没有一点浪费的空间,无阳台,无飘窗,无防空壕,户型方方正正,使得空间看起来远超过45平方米。

如果把沙发的位置做成一张沙发床的话,来个人探亲访友短住两天也绝不在话下

看这主卧,足够宽敞,衣柜上的空间还可作收纳用途
除了户型方正无浪费空间之外,设计上的点滴细节更是使得房间内部的每寸空间利用都达到最大化。

无阳台,无飘窗,空调架作晾衣杆
新加坡公寓无公摊,但有四大浪费空间小恶魔——阳台、飘窗、植物槽和空调架。不是说它们不好,但关键是这可都实实在在算面积的啊。不止一次听买房的朋友说,好想把阳台封起来变成客厅/卧室的面积,或者把飘窗给割出去。Sims的第一期推出的一房单位可倒好,没阳台,没飘窗,没植物槽,只有空调架;如果你连空调架面积都觉得浪费,又嫌弃人家没有户外晾衣服的地儿,你就太小看设计师了。Sims的设计师早就考虑到这一点了,将室外空调架做成一个可晾衣服的地方,还给您配好室外晾衣架,而晾衣架旁边就是可置放洗衣机和烘干机的地方,隐藏在一个壁橱内,真是一分空间一分钱都不浪费。不得不感叹,设计师就是牛逼!
而让人觉得可以把这设计师佩服得更五体投地得就是这卫生间的设计。目前新加坡的一卧小户型,通常为客厅+主卧设计,即卫生间只能通过卧室进入;这样的设计,如果自己住还好,但如果有家人朋友到访,就略显尴尬。如果厕所只可以从客厅进入,那么自住时又要从卧室出来才能到达卫生间,硬生生把主人房变成了普通房,生活质量大大下降。Sims的卫生间是双入口卫生间,在保证房主隐私的同时,考虑到客人使用的需求。卫生间的门为推拉门,不占空间。说实话,这样的设计,如果家人朋友来长住,实用性都堪比一宽敞的2卧公寓了。
秀外闺中小户型之秀外部分
在Sims,小家是你的家,大家也是你的家。走出你的一方小天地,迎接你的是一方更大的天地。

Sims是这一区域内唯一一个占地规模大且设施如此齐全的房产项目,小区里50多项生活配套设施——两个50米长的泳池,专门的儿童游乐园,会所,内设商铺,甚至还有个托儿所!当然了,什么烧烤台健身房都不用提了,绝对全面,绝对便利。小区19楼还有一个空中花园,在那里可以直接看到Sports Hub(新加坡体育城)的国庆烟花!
披露几张小区配套设施的效果图:

看这个19楼的空中花园,在这里开party是不是备有面儿?!

50米长的泳池,小区内有两个这样的大型泳池

绿油油的大草坪,户外活动就在这里了!

一个周末的早上,如此惬意的生活是不是很享受?

颜色丰富的儿童游乐场,看见不远处那玻璃屋子了吗,那就是小区内的会所了
小户型之地段为大
5分钟到地铁站,10分钟就到CBD,生活便利不能比

说完Sims的配套设施,咱们走出来看看它所在的地理位置。在新加坡买房,影响最终房产价格有3个因素,就是location(位置), location(地段), and location(地点)。
从Sims步行5分钟就到Aljunied地铁站,距新加坡市中心CBD仅需4站,10分钟车程至莱佛士坊中央商务区。驾车的话就更方便了,出门就上高速,PIE,KPE和Nicoll Highway通达全岛各地。詹姆斯·库克大学、美以美中小学也都都在这附近。如果你是不需要上班的土(SO)豪(HO),生活也一样的便利:出门就是美食天堂,地铁1个站到未来全新的区域商业中心Paya Lebar,3个站到逛街天堂Bugis。还有一个不得不提的优势就是看演唱会!相信大家都曾有过看完演唱会挤不进地铁又打不到车的凄惨遭遇吧,如果你住在Sims,看完演唱会你就可以在几万人羡慕嫉妒恨的眼神中走路回家~
小户型,投资明智之选
总价57.3万元起!!!这个最优价格仅限特定时期哦,折扣额度随时会变!
这一小户型总价从50多万新元起,对于刚需自住的年轻人来说并不是一个不可承受的负担。假设一个月薪5000的白领(或2个月薪2500的白领夫妻)现想购买一个60万的单位,假设以1.5%的贷款利率,贷款30年来算,首付20% 就是12万(不含印花税,公民/PR的话还可从公积金帐户支出其中的大部分首付),而剩下80%的贷款,每个月的偿还额是1660新币左右(公民/PR的话其中将近$1000将出自公积金帐户,所以现金部分只需支付660/月)算到来每天只需53块(公民/PR的话现金才20多块)*!
(*以上关于贷款额和公积金的计算,仅供参考,准确金额请咨询申请贷款银行和相关政府部门)
据新加坡《商业时报》的全岛租金收益调查显示,从2013第2季至2014第2季,全岛大部分地区在一片跌势中,Sims所在的14区还是见涨了2.8%。作为投资来讲,该区域的公寓单位租金回报率是相对最稳定的,整个新加坡的小户型单位在租赁市场和转售市场也是最吃香的,所以无论从租金回报还是资本收益来讲,Sims都是投资者的明智之选。
在近两年表现略微沉寂的新加坡房市上,终于等到你,实在不容易。新加坡眼VIP看房团现开放预定,请加微信xinjiapoyan18,或点击底部阅读原文链接填写表格预约。
*本文中所示之价格,均仅限特定时期内,信息可能随时变更,敬请谅解!
评论