2018年想买房?下一个潜力楼盘在哪里?

今天我们和大家分享一个位于新加坡政府重点开发区域的潜力楼盘–巴耶利峇地铁口楼盘新地标Park place residences。
新加坡政府致力于要将巴耶利峇打造成为一个充满活力的新商圈,集商场、办公楼、住宅、休闲娱乐等活动与一区。而由澳大利亚最大财团之一的联实集团主导投资开发的综合项目就落地于此,其中就包含了住宅楼盘Park Place Residences,该楼盘准确把握新加坡政策导向,于去年3月推向市场,一天内卖出215个单位!占了总数429个单位的一半!第一阶段销售计划仅一天便达到发展商预计目标而封盘停止销售。现第二阶段销售全面开启!!!

分享安全投资: Park Place Residences地处以巴耶利峇(Paya Lebar)为中心的东部新兴活力消费带正中心,房产、商铺和周边土地价格收益比节节看涨。
分享市场价值: 第14邮区被房地产市场誉为潜力无穷的东部新宠,Park Place Residence坐享该地区稳定品质的消费层,巨大的市场消费基础以及庞大的租房人群打造坚固的市场价值链。
分享品牌运营:国际顶尖的开发商为您有序、科学地规划建设一条安全的投资绿色通道。发展商之一的联实集团 (Lend Lease)是澳大利亚最大上市开发商,该集团已在澳洲、亚洲、欧洲及美洲成功运营,居国际领导地位。
分享品质生活: Park Place Residence周边配套设施完善,临近商业街区由名牌餐饮、风情咖啡、精品购物店等组成,在都市休闲的风格走廊,享受Park Place Residence为您量身订做的品质生活。

拿破仑曾经说过:“我的产业就是荣耀和盛名。”,您的产业,就是Park Place Residence!
Park Place Residences 位于新加坡第 14 区的沈氏道和巴耶利峇路的交界处,是个综合商业和私宅的新项目。该项目就坐落在巴耶利峇中心。巴耶利峇中心在新加坡2008发展总蓝图中以规划成区域中心之一。它将会发展成为一个繁华和充满活力的商业中心。这里将会聚集办公、零售、酒店和便利的公共设施于一体成为辅助中央商业区的角色。巴耶利峇中心的发展正稳步成为新加坡东部一颗璀璨的新星。

美国著名心理学家、康奈尔大学心理学教授托马斯·吉洛维奇(Thomas Gilovich)曾经说过:“一件事的价值大小,应看它能带来多少幸福。”作为一个黄金区位的高级公寓,Park Place Residences的价值不仅仅是让您拥有简单的幸福,而是拥有可持续发展的财富。Park Place Residences销售火爆,很大程度上归功于它的地点。它不但位于巴耶利峇这个未来重点发展的新商业圈,而且还位于区内的心脏地带,与巴耶利峇地铁站直接衔接,是近年来少见、不用过马路就可以直接通往地铁站的私宅项目。不少市场人士看好巴耶利峇的潜能,相信它将是继裕廊之后,新加坡未来10年内最值得期待的新商业圈!财团联实集团与和阿布扎比(Abu Dhabi)主权财富基金联合发展的的项目,其实是一个占地12公顷的大型综合型商住项目“巴耶利峇中心”(Paya Lebar Quarter )。住宅部分就是Park Place Residences,拥有429个公寓单位,分布在三栋17层高的大楼,大楼底层拥有一些零售商店。办公楼面则分布在另外三栋甲级办公大楼,另外还有一个零售面积超过34万平方英尺的商场。整个商业城概念无疑将吸引无数在该区域办公的人士,购买或租用城内的公寓。

过去三四年,巴耶利峇的面貌已悄悄变化。例如终身学习学院(Lifelong Learning Institute)已于2013年完工。刘景发、Sun Venture和商佳之地地产(Guthrie)联手发展的巴耶利峇广场(Paya Lebar Square),以及华业集团发展的OneKM商场也先后于2014年开业。Park Place Residences对面的新邮政中心(SingPost Centre)目前也进行1亿5000万新元的翻新工程。除了这些的大型商场,Park Place Residences 的住户也可以步行到巴耶利峇区的其他主要商场如城市购物中心(City Plaza)、丹戎加东大厦(Tanjong Katong Complex)和历史悠久的如切购物商场(Joo Chiat Complex)等等。此外,Park Place Residences 的住户也能轻易的最享受到新加坡各种美食。从该项目步行几分钟就能抵达巴耶利峇区著名的3大熟食中心:海格路湿巴刹与熟食中心(Haig Road Market and Cooked Food Centre)、芽笼士乃熟食中心(Geylang Serai Market and Food Centre)和阿裕尼大牌117湿巴刹与熟食中心(Aljunied Block 117 Market and Food Centre)。

Park Place Residences身处集文化、体育、教育、商住、休闲景区等为一体的现代综合城区核心地,周边道路四通八达,大环境成熟优越,满足便利的人居环境和繁华的生活梦想。在这里,不管是餐饮娱乐休闲购物,还是商务往来生活教育,一切尽在转瞬之间。文化教育方面,Park Place Residences附近也是名校林立,其中公立学校有光华小学(Kong Hwa School)、海格女校(Haig Girls’ School) 、芽笼美以美小学(Geylang Methodist Primary School)、丹绒加东小学(Tanjong Katong Primary School)、嘉诺撒仁爱会小学(Canossa Convent Primary School)等知名小学。国际学校有加拿大国际学校(丹绒加东区校园)和伊顿国际学校。健康医疗方面,从Park Place Residences驾车只需5分钟即可到达百汇东岸医院(Parkway East Hospital),百汇东岸医院已获得新加坡素质等级和国际医院联合委员会 (JCI) 认证,证明该医院致力藉由自身技术精湛的专业医疗人员帮助患者获得卓越疗效。

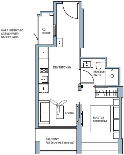
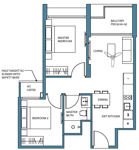
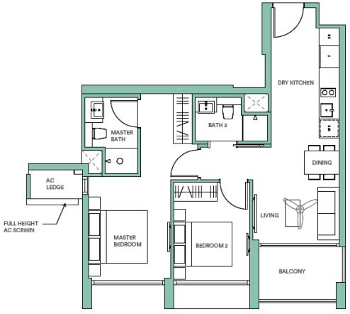
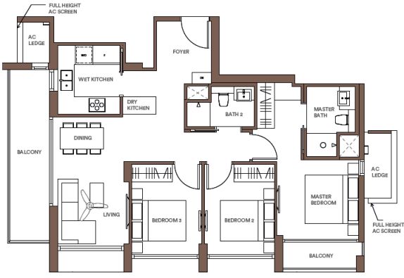
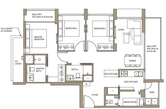
Park Place Residences 地段占地约39,230平方米,地契是属于99年。项目包括3栋私宅大厦,2栋于14层高而另外1栋于13层高,项目共有429套住宅单位。Park Place Residences 的户型包括1卧单位、2卧单位、2卧双钥匙单位和3卧单位。单位面积从44平方米到127平方米。

在Park Place Residences,您会身临其境的感受体验高雅生活,浓郁的欧美情调被浓缩在公寓社区内的园林里;标准的50米现代化泳池和水上乐园区被尊贵的业主们分享;楼上绿意浓浓,碧波漫漫,楼下商场繁华,人流涌动,这完美的动静结合,只有在Park Place Residences才可以独享,社区花园的花香、咖啡香交织着飘散在Park Place Residences的午后成为独特的家园味道。在这里停留,就是充满格调且高品位地享受生活。

Park Place Residences的室内设计极具现代精致风格,配备设施完善的开放式厨房和名师设计的高档家具,从落地玻璃窗望出去,狮城美景,一览无余,Park Place Residences的室内设计体现了现代生活快节奏、简约和实用,但又富有朝气的生活气息。客厅采用大开间设计,满足您一家人对美好生活的梦想,让幸福一步到位。大阔空间,增添生活乐趣,与家人多一份相聚,即是多一份快乐!

1)经典1居室:户型方正,布局合理,无浪费空间。开放式厨房,客厅适中,阳台大小合理。室内面积45平方米(484平方尺),售价仅$90万起。

2)经典2居室户型,房间方正,空间利用率高,室内面积60平方米(646平方尺),售价仅$115万起。

3)2居室典藏版户型,款式新颖,灵活舒适,种类多样,双卫双卧,室内面积69平方米起(743平方尺),价格$125万起。

4)3居室户型,布局合理,动静分明,通透性好,室内面积100平方米起(1076平方尺),价格$180万起。

5)3居室典藏版户型,经典设计,装修时尚,布局合理,主次分明,室内面积108平方米起(1163平方尺),价格$195万起。

商圈核心位置
是名宅永恒价值
高端品质
成就Park Place Residence经典内涵
如果说巴耶利峇中心的发展正稳步成为新加坡东部一颗璀璨的新星,那么Park Place Residence便是这颗星球上最宝贵的钻石矿产。Park Place Residence,用优雅的身姿演绎健康自然、关怀友邻的人文环境,让您的家园时刻弥漫幽雅尊贵之气。从名人到名门,Park Place Residence是关键一步,事业有成之后,势必问鼎名门,以一座豪华名宅的内涵、价值,成就您家族荣耀,打造传世家徽。Park Place Residence,热切盼望您的到来,成就当代名门望族,共铸辉煌!
资深经纪人推荐–
聆听吴洲半小时楼盘讲解,
带您从繁华步入经典。
若您对以上房产感兴趣或者想了解新加坡其它任何房产楼盘信息,请免费联系新加坡眼特约金牌房产经纪人吴洲,常年专业买卖全岛任何新楼盘/二手公寓,开发商直接销售代理,买房无经纪费,一个电话或微信的距离,最新科技定位数百个楼盘数万款房产任您挑,总有一款适合您,投资总价最低$70万新币起,外国人也可贷款。
关于吴洲:任职于新交所上市企业,新加坡最大的国际性产业集团ERA担任高级营销董事,金牌房产经纪人(新加坡IEA房地产经纪协会2013/2014 年度金奖得主),他从业8年,秉承专业诚信,事无巨细的工匠精神从业理念,迄今为止,成交完的产业总市值以数亿新币计算,服务过数百位中高端客户投资新加坡产业,获得客户满意好评,服务过的客户群体有新移民,企业家,艺人,教授学者和房地产开发商等,常年专业提供【新加坡任何公寓楼盘和商业地产以及地皮的买卖投资服务,买私宅无任何经纪费用】,如果您有任何新加坡产业需求,欢迎买家/卖家联系我们,常年买卖各类产业,我办事,您绝对放心。
联系吴洲,请加微信号:peterwu99
手机:(0065) 9672 8008
政府执照号:R009913B

(图文由吴洲提供)
评论