璀璨星光,仅存余量!Belgravia Ace (D28邮区 宏茂桥)
大开发商的诚意之作!
半独立洋房,永久产权,D28邮区,余量不多!

简介
Belgravia Ace位于Belgravia Drive, Singapore。本楼盘由知名开发商Fairview Developments Pte Ltd开发,属永久地契项目(Strata Landed)。
该项目包含104套三层半独立洋房和3套三层联排别墅,拥有统一的外立面设计,别具一格。每套建筑均含地下车库,园区内泳池等各种生活休闲便利设施一应俱全。
新加坡邮区分布图 ,

楼盘概况
楼盘名称:
Belgravia Ace
开发商:Fairview Developments Pte Ltd
产权:永久
完成年份:2028年
单位数量:104套半独立洋房+3套联排别墅
楼层数量:3
起始总价:新币 S$4,531,000
每平方英尺起始:新币 S$1,117





卖点
购物 | 餐饮 | 休闲娱乐
· Greenwich V
· The Seletar Mall
· AMK Hub
· Hougang 1
· Junction 8
· NEX
· Jalan Kayu Eateries
· Seletar Aerospace
· MyVillage @ Maju Avenue
公园 | 公共休闲设施
· Seletar Country Club
· Hampstead Wetlands Park
· Serangoon Gardens Country Club
· Lower Seletar Reservoir
· Sengkang Riverside Park
· Bishan Park
· North-East Waterways
· Punggol Point
· Coney Island
学校 | 教育资源
· Rosyth Primary School
· Hougang Primary School
· Anderson Secondary School
· Nan Chiau Secondary School
· Anderson Junior College
· Nanyang Junior College
· Nanyang Polytechnic
· ITE College Central
交通 | 便利
· Ang Mo Kio MRT Station 地铁站
· Yio Chu Kang MRT Station 地铁站
· Central Expressway (CTE)
· Seletar Expressway (SLE)
· Tampines Expressway (TPE)
· Upcoming North-South Expressway (NSE) 在建
· Bus Stop (72021) along Ang Mo Kio Avenue 5







户型分布

主力户型
半独立洋房 Semi-Detached
新币 S$4,531,000 起
C户型 半独立洋房 4058平方英尺/377平方米
25%首付:S$1,132,750 / 75%贷款:S$3,398,250
30年贷款,2%利息,月供:S$12,561
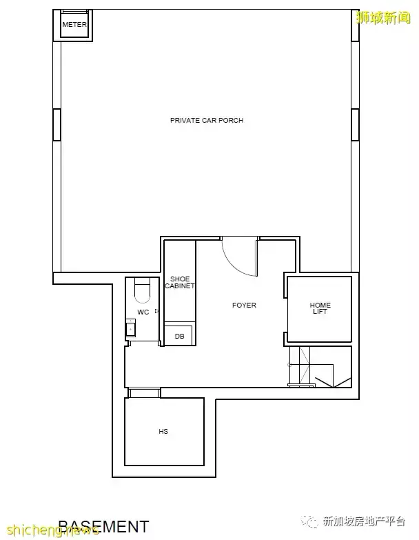
地下室(私人车库):

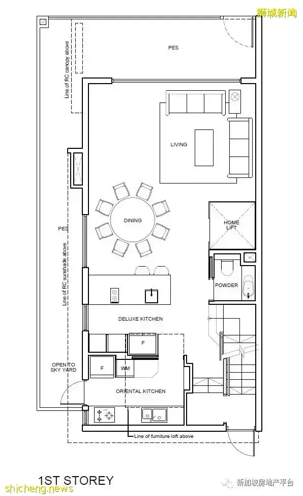
一层:

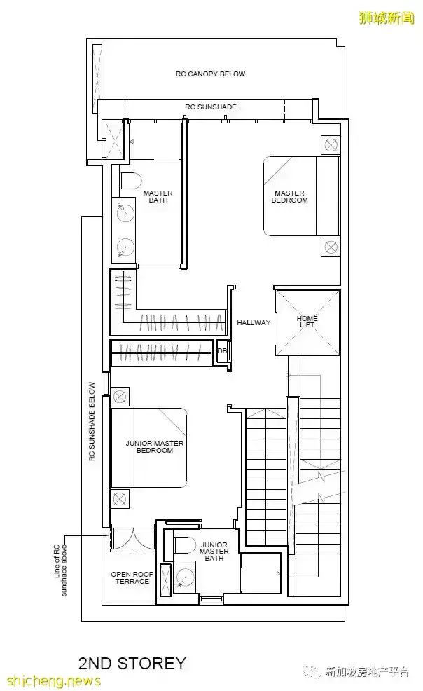
二层:

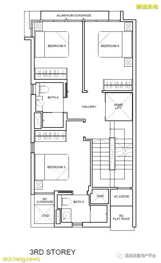
三层:

屋顶(联排):

LOFT(跃层):
左:平面设计图
右:等距视图

评论