住新加坡的“皇城根儿”是怎样一种体验……

大家都知道北京的“皇城根儿”,紧挨着紫禁城那些胡同里的院落,自古住的都是皇亲国戚,即便是到了现在,那也是寸土寸金的地方。
其实,在新加坡也有所谓的“皇城根儿”豪宅~
这里,离新加坡的政治中心——国会大厦,只有步行7分钟的距离!

▲(新加坡国会大厦)
在客厅喝早茶可以看到整个滨海湾的全景,金沙酒店、“大榴梿”滨海艺术中心、摩天轮……每天晚上都有客厅版“灯光秀”。

▲首都御府效果图
趴在无边泳池上,远远望过去是号称“价值百万美金”的滨海湾夜景。

▲首都御府效果图
也可以一览金融区的风光~

▲首都御府

▲首都御府效果图
出门散散步,圣安德鲁大教堂时而传来庄严肃穆的钟声,让人的内心获得极大的平静。或是去附近的新加坡国家美术馆转转,接受艺术熏陶。

▲首都御府效果图
由于周围都是受政府保护的历史建筑,不用担心被拆了盖高楼。在新加坡最繁华的地段,也能一直拥有开阔的视野。

▲政府大厦大草场(The Padang)
这座“皇城根儿”豪宅,就是由鹏瑞利置地集团开发的首都御府(Eden Residences Capitol)。这名字,真是把高大上的气质完美体现了啊

▲(首都御府样板间效果图)
新加坡唯一集酒店、商场、剧院、住宅以及联接地铁传换站的为一的豪华综合项目
“综合体”的概念在新加坡常见,但像这样把周围已有的资源全部整合,形成一个独立小社区的综合开放项目,却很少。
新加坡首都-Capitol Singapore 包括首都御府住宅,商场,首都戏院、凯宾斯基酒店。

▲Capitol Piazza -购物商场
新加坡首都-Capitol Singapore综合项目每一项都是顶尖配置 。Capitol Piazza是一站式的生活休闲购物商场,有很多品牌精品店和新加坡顶级本土设计师创建的旗舰店,当然,超多的美食选择也是一大亮点。

▲(商场公共区域)
从首都御府望出去,直接就可以看到赞美广场。它的前身是一所天主教女子学校,如今已成为集商业、娱乐、用餐、演出为一身的综合建筑。


▲首都御府
首都御府还和凯宾斯基酒店合作,住户可以品尝米其林星级主厨Alvin Leung带来的美食,享受酒店提供的私人厨师,以及得到各种优惠。这家豪华酒店共有 157间客房和套房,酒店可直接通往著名的首都剧院。

▲新加坡首都 – Capitol Singapore
有空闲的时候,还可以去首都戏院听听音乐,感受东南亚最大单银幕戏院的魅力。这所1930年建成的地标建筑,自开业以来,一直稳居新加坡电影业的第一把交椅。首都戏院也是个多用途会议厅。

▲首都剧院
作为一个开放式的“综合体”,首都御府周围交通十分便利。地处新加坡市中心,被3条地铁线路包围着,Capitol Piazza商场地下二层直接通向红线和绿线的换乘站政府大厦站,步行5分钟可达黄线滨海艺术中心站。
如果是在新加坡金融区工作,那每天走着就去上班了。

稀有供应,典藏精品
“首都御府”地处新加坡豪宅区,住宅供应极为稀少。近年来,只推出了“首都御府”和“另一个项目。
新加坡私人住宅需求强劲,而且新加坡房地产投资市场在亚太区排名第二,再加上首都御府极好的地段,让它成为了稳稳的潜力股。
实力雄厚的发展商
当然,除了好地段和齐备的功能性,项目的开发商和设计师,也是房产价值的保障者。
鹏瑞利置地集团是一家业界领先的综合性房地产和医疗健康公司。主要投资大规模的综合性房地产开发项目,遍布中国、新加坡、马来西亚、印尼和加纳,物业总建筑面积约6,500万平方尺。
在新加坡,鹏瑞利置地集团投资并管理位于市中心行政区、中央商业区和乌节路核心地段的标志性优质物业,包括新加坡首都综合项目、赞美广场、安盛保险大厦、111索美塞、唐城坊和陈旭年宅第。

▲《疯狂的亚洲富豪》中的赞美广场婚礼
在中国,鹏瑞利置地集团有成都东站综合项目、西安北站综合项目、天津南站综合项目和昆明南站综合项目,是集商场、医疗、健康和养老设施为一体的高铁综合商业枢纽项目。 其它标志性项目包括北京通州综合项目、沈阳龙之梦综合项目和珠海横琴综合项目。

▲昆明南站综合项目效果图
作为新加坡唯一集酒店、商场、剧院、住宅为一体的豪华综合项目,开发商专门聘请了有“建筑学的诺贝尔奖”之称的普利兹克奖得主Richard Meier设计。著名的罗马千禧教堂,就出自于他的手笔。

▲(Richard Meier和千禧教堂)
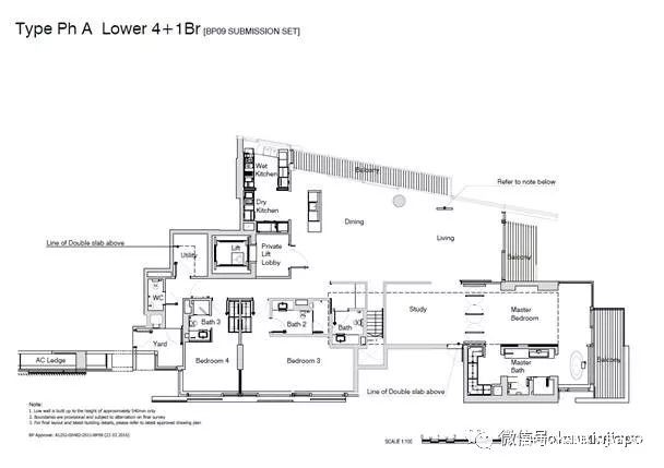
首都御府房型一览





(注* 文中所有效果图、户型图仅供参考,请以实物为准)
据说,首都御府现在只有9间现房待售,如果感兴趣可以联络发展商营销团队,询问更多详情。
黄素琳(Vicky) +65 94565498
陶思颖(Priscilla) +65 94565235
想知道更多关于首都御府的信息,可以点击这里。
评论