X

精挑细选:300万以内四卧新房看这里

四卧公寓在新加坡是有特殊意义的。

新加坡的组屋物美价廉,但2000年以后的组屋就只有三个卧室,面积不超过120平方米。虽然五房式组屋可以改成四卧,但是居住体验大受影响。

所以如果想住四卧,想住的舒服,只能选公寓(或者别墅)。

纵观全岛,300万以内的四卧新房以下几个是不错的选择:

Parc Clematis 锦泰门第

位于宇宙中心金文泰,一公里内四所小学阶梯分布。步行可到南华中学,去南洋女中,华侨中学也很方便。国立大学就在旁边,公交几站路。纬壹科技园四站地铁,互联网大厂助你踏上人生巅峰。食阁巴刹电影院,商场诊所体育场,通通步行十分钟。

这个位置可以满足从摇篮到坟墓,各个年龄段的所有需求。

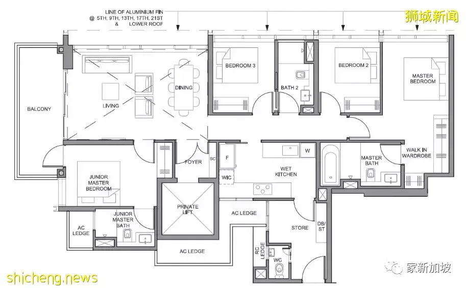
139平米的四卧值得拥有:

户型上可以说是四卧典范:私人电梯,客厅双面窗,大主人房带步入式衣柜,小主人房面积宽敞,两间普通房其中一间可以和厕所直接相通。

非常适合有小朋友的家庭自住。

Avenue South Residences 南峰雅苑

驾车5分钟即可到达市中心。楼下就是铁路景观走廊,靠近项目的这个区段,是政府和发展商共同开发的,是小区的有机延伸。项目高达56层,顶楼风景无敌,彰显豪宅气质。

一公里内三所小学,拉丁马士属于名校,樟德小学就很一般了,剩下CHIJ Kellock是女子小学。从学校角度来说略逊一筹。

同样是139平方米的经典四卧设计:

和锦泰门第类似,最大的不同有两处:一个是单面大阳台,一个是较小的卧室。这个户型的概念是让家人能有更多时间在公共空间相互交流。左侧两个普通房作为孩子的单人房间是完全足够的,右侧的普通房完全可以做成独立的小主人房给父母居住。

非常适合在市区上班的精英家庭。

Clavon 悦文荟

和锦泰门第一样位于金文泰,和南峰雅苑一样出自发展商UOL。

一公里内两所小学,培童和金文泰,都不算名校。两栋住宅楼37层高,视野非常开阔,尽显轻奢品质。

147平方米的四卧户型,更宽敞:

客厅宽阔,包括厨房岛台,这点非常有豪宅特色。带有一个小书房,和主卧直接连通,非常符合现在居家办公的要求。

非常适合在科技园上班的高知家庭。

Normanton Park 鑫悦府

这其实是个饱受争议的项目。

位置好,靠近纬壹科技园,周围众多高新技术公司,就业资源非常优质;靠近市区,开车到莱佛士坊仅需10分钟;靠近公园,一望无际的森林视野。

位置也不好,一公里内没有小学,不靠近地铁站,周围没有成熟的商业区。

抛开发展商的历史问题不谈,单从设计上看,大气磅礴又精致典雅,整个小区自成一体,有世外桃源的感觉。

四卧122平方米,偏小:

对比之前的三个户型,Normanton Park没有私人电梯,长客厅设计,主人房也不够开阔,不过普通房卧室面积还是不错的。小区的定位是面向大众,设计偏向紧凑实用,性价比很高。

非常适合孩子已经上中学的家庭投资+自住。

现在市场上的二手四卧现房数量少价格高,而且户型也不尽如人意,无论从投资价值还是生活质量考虑,新公寓项目都更值得关注。新公寓最大的缺点是需要等1-3年,但相对于未来十年二十年的居住时间来看,我认为有些等待是值得的。